

Мюнхен
Современная баня с выразительным дизайном
и продуманной планировкой для загородного релакса
Размеры
6х4Площадь помещений
12 м²Пятно застройки
24 м²Этажность
1Технология
КаркаснаяСтиль
ФахверкСтоимость
от 1 850 000 руб.Размеры
6х4Площадь помещений
12 м²Пятно застройки
24 м²Этажность
1Технология
КаркаснаяСтиль
ФахверкПо вашему запросу мы бесплатно доработаем планировку, чтобы вы получили максимальное удовольствие от загородного отдыха
Предложим планировку, в которой каждый квадратный метр будет использован с максимальной эффективностью
Увеличим или уменьшим площадь здания. Изменим расположение окон и дверей. Добавим санузел, ещё одну спальню для гостей, террасу и так далее
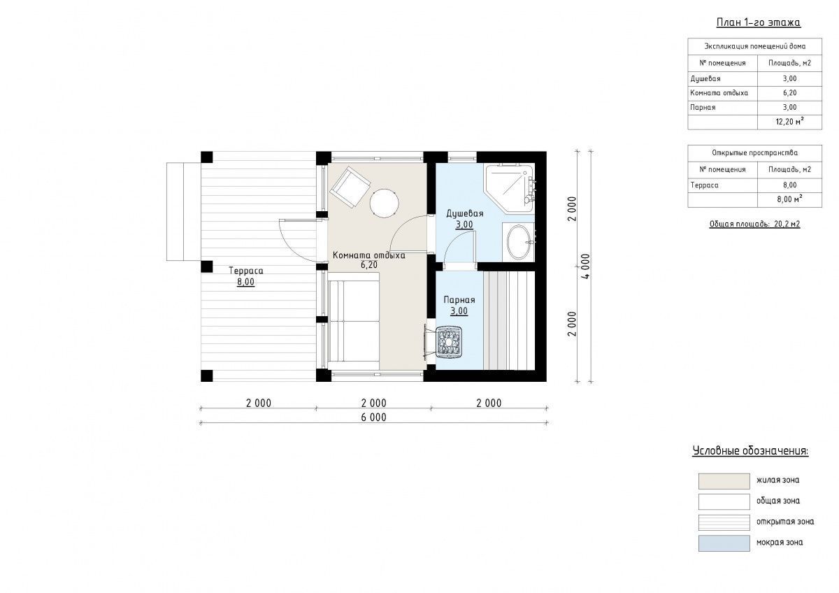
Изменить проектМюнхен: Фахверковая баня – 6х4
Фахверковая баня размером 6х4 м «Мюнхен» общей площадью 20 м² выполнена по каркасной технологии с элементами фахверка, что подчеркивает традиции европейской архитектуры.
Панорамное остекление и контрастное сочетание деревянного каркаса с фасадными материалами создают выразительный внешний вид и наполняют помещения естественным светом.
Внутренние помещения занимают 12 м² и включают комнату отдыха 6 м², парную и душевую по 3 м². Просторная терраса площадью 8 м² станет идеальным местом для отдыха и общения на свежем воздухе.
Проект «Мюнхен» идеально подходит для эстетов, ценящих гармонию стиля, уют и функциональность в сочетании с современным дизайном.
- 4x6
- Бани под ключ
- Бани с верандой в стиле Лофт
- Бани с плоской крышей в стиле Лофт
- Бани с террасой в стиле Лофт
- Готовые деревянные бани
- Дачные
- Деревянные
- Дизайнерские одноэтажные бани
- Дом бани в стиле Хай-тек
- Каркасные бани
- Современные бани в стиле Лофт
- Типовые проекты бань
- Треугольная баня с треугольной крышей
- Треугольные двухэтажные бани
- Треугольные одноэтажные бани
- Треугольный дом с баней
- Угловые бани с террасой и бассейном
- Угловые бани с террасой и верандой
- Угловые бани с террасой под одной крышей
- Угловые маленькие бани
| Описание | |
|---|---|
| 1. Фундамент |
|
| 2. Стеновой комплект |
|
| 3. Кровля |
|
| 4. Окна и двери |
|
| 5. Сопровождение строительства |
|
-
Заказать бесплатные изменения в проекте
или планировке
-
Получить фото и планировку этого проекта в WhatsApp или Telegram
Отправим
в течение
5 минут -
Получить расчет
стоимости в 3 вариантах комплектации
Остались вопросы?
Свяжитесь с нами или оставьте заявку — мы проконсультируем вас по всем вопросам.
Артем Ефремов
Эксперт по строительству
Похожие проекты
Другие- 6х4
- Размеры
- 12 м²
- Площадь помещений
Заполните форму и получите бесплатно: