

Франкфурт Small
Практичное решение
с продуманной планировкой и стильным внешним видом.
Размеры
4х5Площадь помещений
12 м²Пятно застройки
20 м²Этажность
1Технология
КаркаснаяСтиль
КлассикаСтоимость
от 1 334 000 руб.Размеры
4х5Площадь помещений
12 м²Пятно застройки
20 м²Этажность
1Технология
КаркаснаяСтиль
КлассикаПо вашему запросу мы бесплатно доработаем планировку, чтобы вы получили максимальное удовольствие от загородного отдыха
Предложим планировку, в которой каждый квадратный метр будет использован с максимальной эффективностью
Увеличим или уменьшим площадь здания. Изменим расположение окон и дверей. Добавим санузел, ещё одну спальню для гостей, террасу и так далее
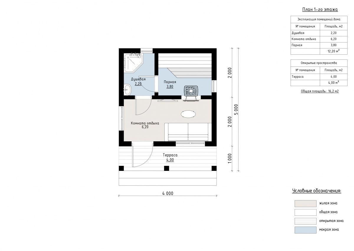
Изменить проектФранкфурт Small: Финская баня – 4х5
Финская баня 5×4 м «Франкфурт Small» общей площадью 16 м² выполнена по каркасной технологии, что позволяет оптимизировать затраты и сроки строительства, а также адаптировать проект под индивидуальные запросы.
Компактная планировка идеально подходит для небольших участков, создавая уютное пространство для отдыха. Классический стиль с деревянной отделкой органично вписывается в любой ландшафт.
Общая площадь внутренних помещений — 12 м²: комната отдыха 6 м², парная 4 м² и душевая. Терраса 4 м² дополняет баню, обеспечивая зону отдыха на свежем воздухе.
«Франкфурт Small» — функциональное решение для дачи или загородного дома, совмещающее комфорт и стиль.
| Описание | |
|---|---|
| 1. Фундамент |
|
| 2. Стеновой комплект |
|
| 3. Кровля |
|
| 4. Окна и двери |
|
| 5. Сопровождение строительства |
|
-
Заказать бесплатные изменения в проекте
или планировке
-
Получить фото и планировку этого проекта в WhatsApp или Telegram
Отправим
в течение
5 минут -
Получить расчет
стоимости в 3 вариантах комплектации
Остались вопросы?
Свяжитесь с нами или оставьте заявку — мы проконсультируем вас по всем вопросам.
Артем Ефремов
Эксперт по строительству
Похожие проекты
Другие- 4х5
- Размеры
- 12 м²
- Площадь помещений
Заполните форму и получите бесплатно: