

Кембридж
Идеальное решение для загородного участка,
объединяющее комфорт и традиции.
Размеры
12х6Площадь помещений
36 м²Пятно застройки
72 м²Этажность
1Технология
БревноСтиль
ШалеСтоимость
от 2 480 000 руб.Размеры
12х6Площадь помещений
36 м²Пятно застройки
72 м²Этажность
1Технология
БревноСтиль
ШалеПо вашему запросу мы бесплатно доработаем планировку, чтобы вы получили максимальное удовольствие от загородного отдыха
Предложим планировку, в которой каждый квадратный метр будет использован с максимальной эффективностью
Увеличим или уменьшим площадь здания. Изменим расположение окон и дверей. Добавим санузел, ещё одну спальню для гостей, террасу и так далее
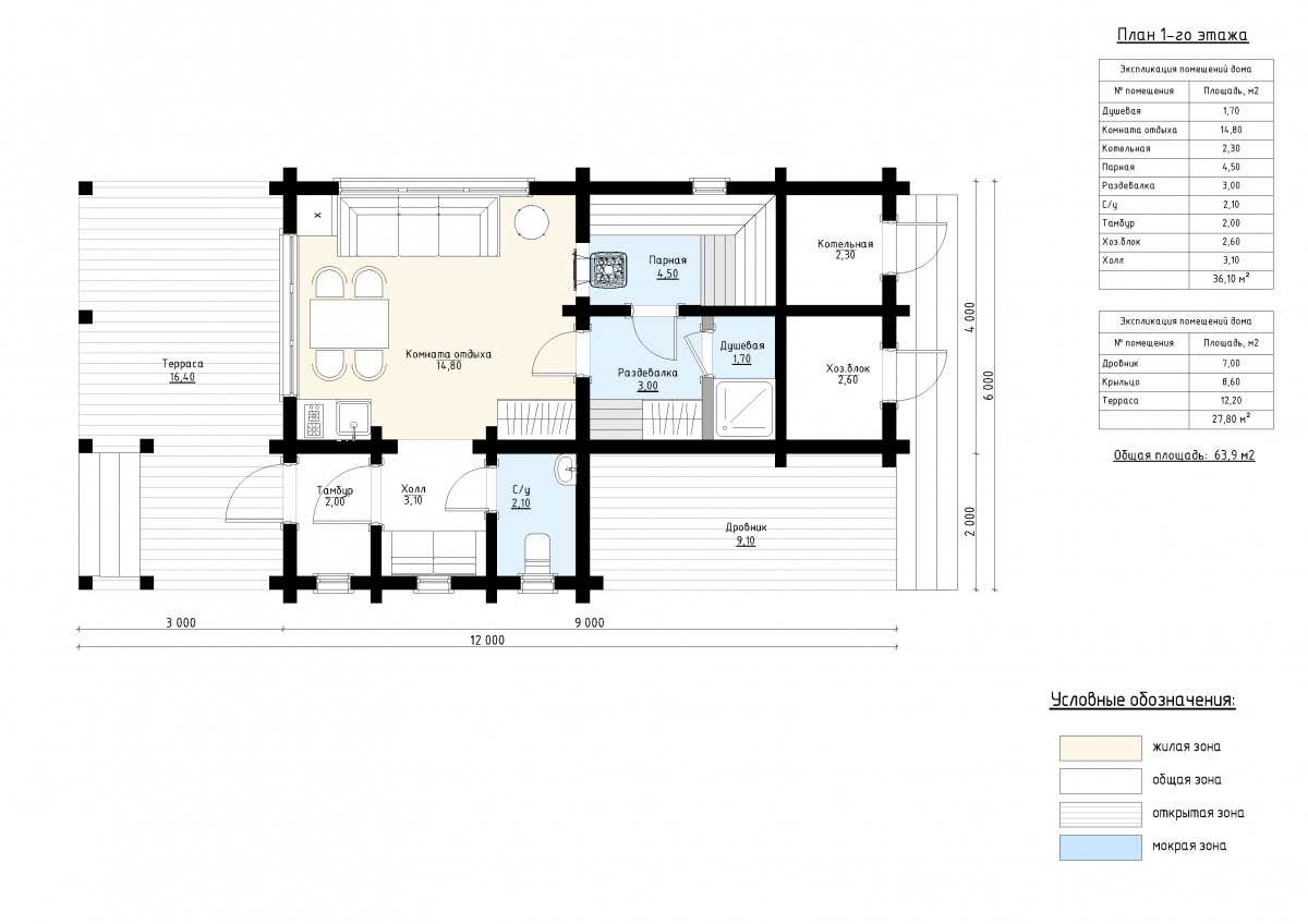
Изменить проектКембридж: Финская баня из бревна – 12х6
Просторная баня “Кембридж” – это сочетание уюта, комфорта и традиционного деревянного зодчества.
Планировка включает комнату отдыха (15 м²), парную (5 м²), душевую (2 м²), раздевалку (3 м²), санузел (2 м²) и хозяйственный блок (8 м²). Просторная терраса (15 м²) позволяет наслаждаться свежим воздухом в любое время года. Внутренние помещения тщательно продуманы для удобства, а большие окна наполняют пространство естественным светом.
Главные акценты проекта – массивные бревенчатые стены, высокая крытая терраса и гармоничное сочетание натурального дерева с каменными элементами. Баня идеально впишется в природный ландшафт и станет уютным местом для отдыха всей семьи.
| Описание | |
|---|---|
| 1. Фундамент |
|
| 2. Стеновой комплект |
|
| 3. Кровля |
|
| 4. Окна и двери |
|
| 5. Сопровождение строительства |
|
-
Заказать бесплатные изменения в проекте
или планировке
-
Получить фото и планировку этого проекта в WhatsApp или Telegram
Отправим
в течение
5 минут -
Получить расчет
стоимости в 3 вариантах комплектации
Остались вопросы?
Свяжитесь с нами или оставьте заявку — мы проконсультируем вас по всем вопросам.
Артем Ефремов
Эксперт по строительству
Похожие проекты
Другие- 12х6
- Размеры
- 36 м²
- Площадь помещений
Заполните форму и получите бесплатно: