
CUBE 11
Баня с открытой планировкой
и минималистичной эстетикой
Размеры
5х6Площадь помещений
24 м²Пятно застройки
30 м²Этажность
1Технология
КаркаснаяСтиль
МинимализмСтоимость
от 1 794 000 руб.Размеры
5х6Площадь помещений
24 м²Пятно застройки
30 м²Этажность
1Технология
КаркаснаяСтиль
МинимализмПо вашему запросу мы бесплатно доработаем планировку, чтобы вы получили максимальное удовольствие от загородного отдыха
Предложим планировку, в которой каждый квадратный метр будет использован с максимальной эффективностью
Увеличим или уменьшим площадь здания. Изменим расположение окон и дверей. Добавим санузел, ещё одну спальню для гостей, террасу и так далее
Изменить проектCUBE 11: Фахверковая баня – 5х6
Баня Cube 2 (5×6) — это современный проект банного домика в минималистичном стиле.
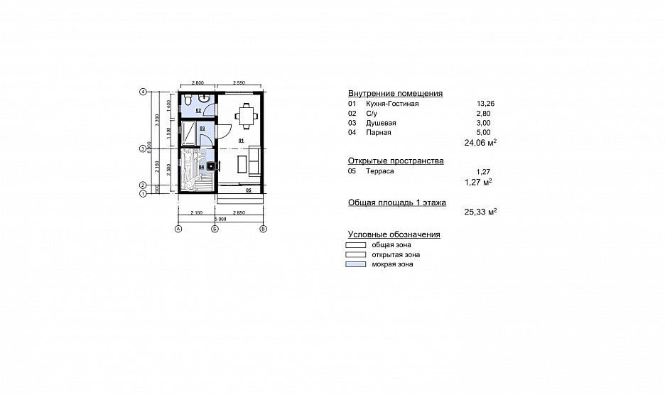
Он выполнен из экологичного профилированного бруса и облицован вертикальным деревянным фасадом. Архитектура строения отличается лаконичными формами, большими панорамными окнами и плоской кровлей, что придает проекту актуальный городской облик. Площадь застройки составляет 25 м², из которых 24 м² приходится на внутренние помещения и 1 м² — на открытую террасу. Внутреннее пространство включает кухню-гостиную (13 м²), санузел (3 м²), душевую (3 м²) и полноценную парную (5 м²). Такое зонирование делает баню подходящей как для индивидуального отдыха, так и для приёма гостей. Cube 11 подойдёт тем, кто ищет готовое решение для дачного участка или запуска небольшого коммерческого объекта. Он комфортен, визуально привлекателен и энергоэффективен — идеальный выбор для современного загородного отдыха.
- Бани 5х6 под ключ
- Бани под ключ
- Бани с большой террасой под ключ
- Бани с открытой верандой
- Бани с панорамными окнами в стиле Хай-тек
- Бани с террасой под одной крышей
- Бани хай тек с панорамными окнами
- Готовые бани в стиле Модерн
- Дачные
- Двухэтажные дом бани с панорамными окнами
- Дизайнерские бани в стиле Хай-тек
- Дизайнерские одноэтажные бани
- Дом бани в стиле Хай-тек
- Дом с баней для дачи
- дом-баня
- Жилые бани в стиле Хай-тек
- Каркасные бани
- Красивые бани с панорамными окнами
- Недорогие бани с барбекю
- Недорогие бани с гаражом
- Недорогие бани с душем
- Недорогие бани с мангалом
- Недорогие бани с печкой
- Недорогие двухэтажные бани
- Одноэтажные бани в стиле Модерн
- Одноэтажные бани в стиле Хай-тек
- Одноэтажные бани для проживания зимой
- Одноэтажные бани с мангалом
- Оригинальные одноэтажные бани
- Современные бани в стиле Минимализм
- Современные бани в стиле Модерн
- Современные бани с панорамными окнами
- Типовые проекты бань
| Описание | |
|---|---|
| 1. Фундамент |
|
| 2. Стеновой комплект |
|
| 3. Кровля |
|
| 4. Окна и двери |
|
| 5. Сопровождение строительства |
|
-
Заказать бесплатные изменения в проекте
или планировке
-
Получить фото и планировку этого проекта в WhatsApp или Telegram
Отправим
в течение
5 минут -
Получить расчет
стоимости в 3 вариантах комплектации
Остались вопросы?
Свяжитесь с нами или оставьте заявку — мы проконсультируем вас по всем вопросам.
Артем Ефремов
Эксперт по строительству
Похожие проекты
Другие- 5х6
- Размеры
- 24 м²
- Площадь помещений
Заполните форму и получите бесплатно: