

Scandi 04
Размеры
6х7Площадь помещений
20 м²Пятно застройки
42 м²Этажность
1Технология
МодульнаяСтиль
Стоимость
от 2 388 000 руб.Размеры
6х7Площадь помещений
20 м²Пятно застройки
42 м²Этажность
1Технология
МодульнаяСтиль
По вашему запросу мы бесплатно доработаем планировку, чтобы вы получили максимальное удовольствие от загородного отдыха
Предложим планировку, в которой каждый квадратный метр будет использован с максимальной эффективностью
Увеличим или уменьшим площадь здания. Изменим расположение окон и дверей. Добавим санузел, ещё одну спальню для гостей, террасу и так далее
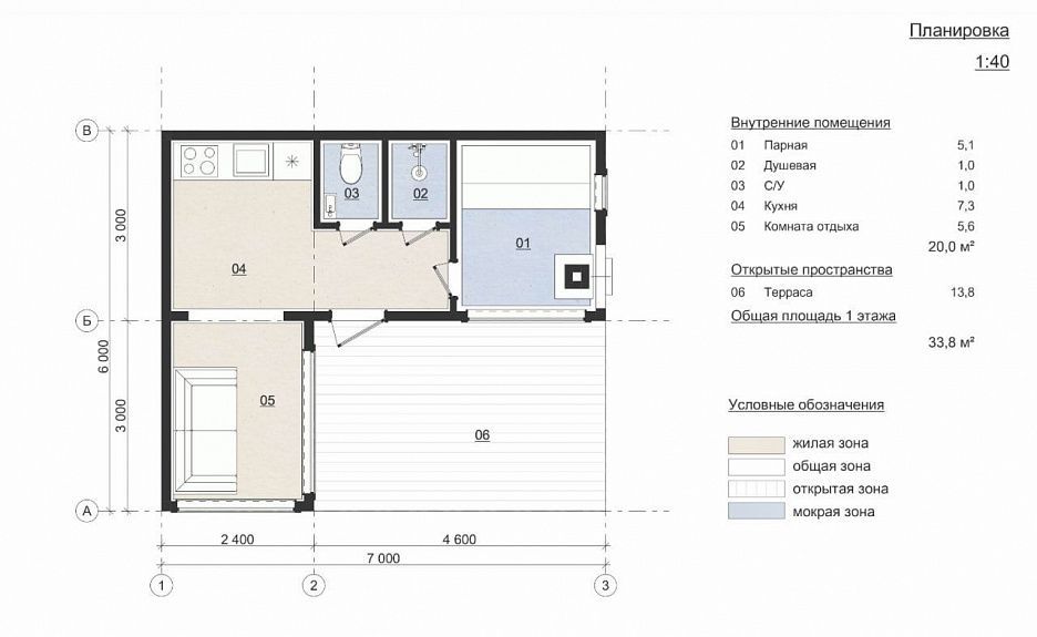
Изменить проектScandi 04: 2х модульная баня 6×7 с панорамным остеклением, комнатой отдыха и кухней
Модульная каркасная баня размером 6×7 м «Scandi 04» общей площадью 42 м² выполнена в современном скандинавском стиле, который подчеркивает минимализм, функциональность и гармонию с природой.
Просторная открытая терраса площадью 13,8 м² создает дополнительное место для отдыха на свежем воздухе, а продуманная двухмодульная планировка делает баню просторной и удобной для больших компаний. Внутренние помещения занимают 20 м², включая уютную комнату отдыха площадью 5,6 м², функциональную кухню 7,3 м², увеличенную парную 5,1 м², компактную душевую 1 м² и отдельный санузел 1 м². Два панорамных окна обеспечивают естественное освещение и визуальную связь с окружающей природой, создавая ощущение простора и единения с ландшафтом. Открытая терраса станет прекрасным местом для общения, размещения обеденной группы и расслабления после банных процедур. Негабаритная конструкция устанавливается за 1–3 дня и полностью готова к эксплуатации. Проект «Scandi 04» идеально подойдет для семейного отдыха или встреч с друзьями на среднем по размеру участке, предлагая комфортное и стильное пространство с продуманным функциональным зонированием и увеличенной вместимостью.
- Бани под ключ
- Бани: модульные 15-20 кв м
- Бани: модульные 6x7
- Бани: модульные джакузи
- Бани: модульные дизайнерские
- Бани: модульные комната и терраса
- Бани: модульные компактные
- Бани: модульные кухня
- Бани: модульные летняя кухня
- Бани: модульные минимализм
- Бани: модульные модерн
- Бани: модульные на 3 человек
- Бани: модульные на 4 человек
- Бани: модульные на 5 человек
- Бани: модульные одноэтажные
- Бани: модульные оригинальные
- Бани: модульные парилка
- Бани: модульные плоская
- Бани: модульные сауна
- Бани: модульные типовые
- Бани: модульные хай-тек
- Готовые бани
- готовые бани с террассой
- Готовые модульные бани
- Дачные
- Двухмодульные бани
- Деревянные
- Каркасные бани
- Модульные бани
- Модульные бани с беседкой
- Модульные бани с верандой
- Модульные бани с душем
- Модульные бани с комнатой
- Модульные бани с купелью
- Модульные бани с мангальной зоной
- Модульные бани с террасой
- Модульные бани с туалетом-санузлом
- Модульные бани с чаном
- Модульные каркасные
- Панорамные модульные бани
- Размеры модульных бань
- Скандинавские модульные бани
- Типовые проекты бань
- Угловые модульные бани
| Описание | |
|---|---|
| 1. Фундамент |
|
| 2. Стеновой комплект |
|
| 3. Кровля |
|
| 4. Окна и двери |
|
| 5. Сопровождение строительства |
|
-
Заказать бесплатные изменения в проекте
или планировке
-
Получить фото и планировку этого проекта в WhatsApp или Telegram
Отправим
в течение
5 минут -
Получить расчет
стоимости в 3 вариантах комплектации
Остались вопросы?
Свяжитесь с нами или оставьте заявку — мы проконсультируем вас по всем вопросам.
Артем Ефремов
Эксперт по строительству
Похожие проекты
Другие- 6х7
- Размеры
- 20 м²
- Площадь помещений
Заполните форму и получите бесплатно: