
Баня 6х8 из бруса Вольфсбург
Современная баня с душой традиций —
уютный отдых в продуманном пространстве.
Размеры
6х8Площадь помещений
30 м²Пятно застройки
48 м²Этажность
1Технология
Проф. брусСтиль
ТрадиционныйСтоимость
от 1 704 000 руб.Размеры
6х8Площадь помещений
30 м²Пятно застройки
48 м²Этажность
1Технология
Проф. брусСтиль
ТрадиционныйПо вашему запросу мы бесплатно доработаем планировку, чтобы вы получили максимальное удовольствие от загородного отдыха
Предложим планировку, в которой каждый квадратный метр будет использован с максимальной эффективностью
Увеличим или уменьшим площадь здания. Изменим расположение окон и дверей. Добавим санузел, ещё одну спальню для гостей, террасу и так далее
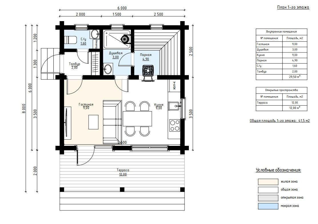
Изменить проектБаня 6х8 из бруса Вольфсбург: Баня из профилированного бруса – 6х8
Баня из бруса «Вольфсбург» 6×8 – это сочетание практичности, уюта и традиционного загородного стиля.
Чистые линии фасада, широкая крытая терраса и большие окна создают образ современной и уютной бани, идеально вписывающейся в лесной или приусадебный ландшафт. Общая площадь строения составляет 42 м², из которых 30 м² — это внутренняя полезная площадь, а еще 12 м² занимает открытая терраса. Планировка включает полноценную кухню и гостиную (по 9 м² каждая), что делает баню пригодной для длительного отдыха. Также предусмотрены душ (3 м²), парная (почти 5 м²), санузел и тамбур — функциональность и комфорт продуманы до мелочей. Проект подойдет тем, кто ищет не просто баню, а место для уединения или отдыха с семьей. Отличный выбор как для дачного участка, так и для баз отдыха или мини-глэмпингов. Используемый материал — экологичный профилированный брус — гарантирует надежность, теплоизоляцию и гармонию с природой.
| Описание | |
|---|---|
| 1. Фундамент |
|
| 2. Стеновой комплект |
|
| 3. Кровля |
|
| 4. Окна и двери |
|
| 5. Сопровождение строительства |
|
-
Заказать бесплатные изменения в проекте
или планировке
-
Получить фото и планировку этого проекта в WhatsApp или Telegram
Отправим
в течение
5 минут -
Получить расчет
стоимости в 3 вариантах комплектации
Остались вопросы?
Свяжитесь с нами или оставьте заявку — мы проконсультируем вас по всем вопросам.
Артем Ефремов
Эксперт по строительству
Похожие проекты
Другие- 6х8
- Размеры
- 30 м²
- Площадь помещений
Заполните форму и получите бесплатно: