Гараф

Универсальная баня,
объединяющая эстетику, удобство и практичность.

Размеры

6х8

Площадь помещений

78 м²

Пятно застройки

48 м²

Этажность

2

Технология

Брус

Стиль

Фахверк

Стоимость

от 3 627 000 руб.
от 3 627 000 руб.

Размеры

6х8

Площадь помещений

78 м²

Пятно застройки

48 м²

Этажность

2

Технология

Брус

Стиль

Фахверк
Бесплатно
Бесплатно адаптируем планировку для вас

По вашему запросу мы бесплатно доработаем планировку, чтобы вы получили максимальное удовольствие от загородного отдыха

Предложим планировку, в которой каждый квадратный метр будет использован с максимальной эффективностью

Планировка

Увеличим или уменьшим площадь здания. Изменим расположение окон и дверей. Добавим санузел, ещё одну спальню для гостей, террасу и так далее

Изменить проект

Гараф: Баня из бруса – 6х8

Каркасная баня «Гараф» — это просторный и стильный вариант для комфортного отдыха и оздоровительных процедур.

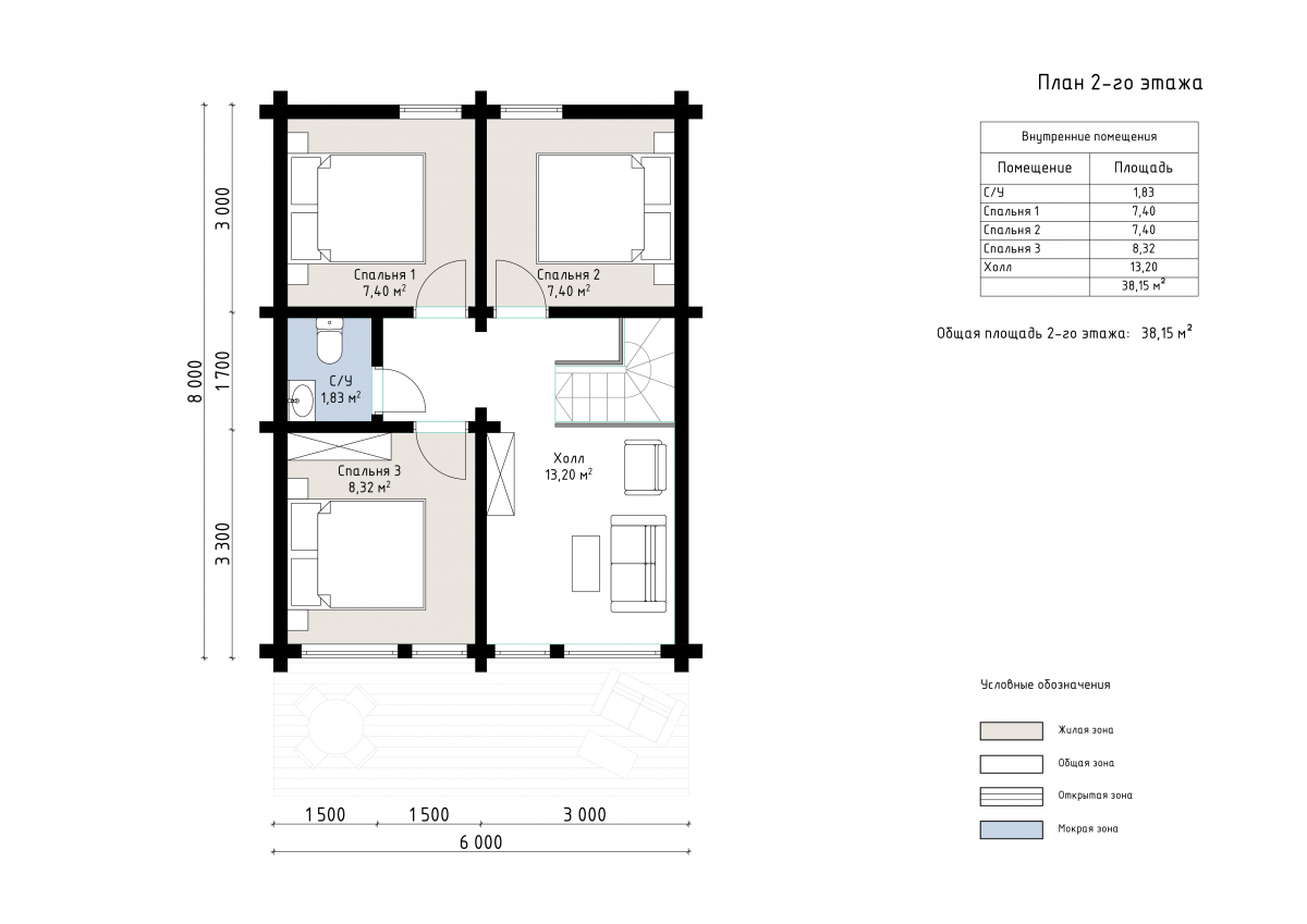
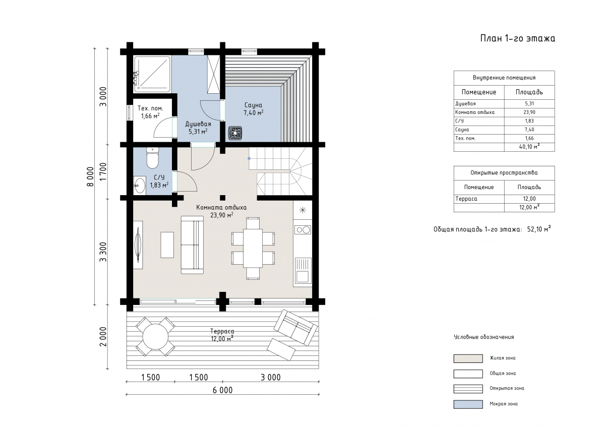
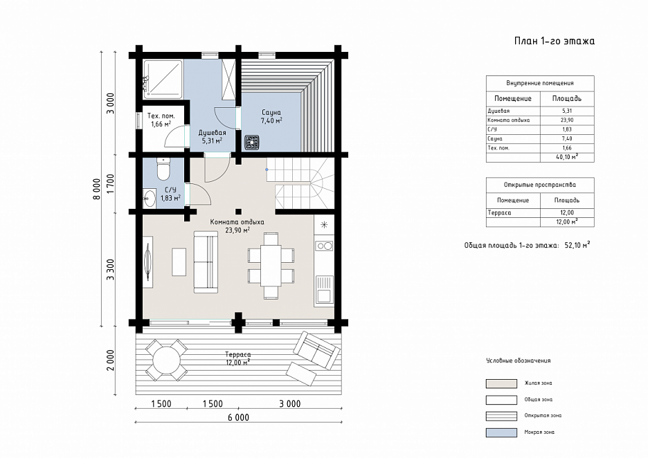
Баня построена из прочного профилированного бруса, она гармонично вписывается в природное окружение, подчеркивая эстетику и натуральность деревянной архитектуры. Благодаря строгой геометрии фасада, высокой двускатной крыше и выразительной террасе баня выглядит стильно и современно. Общая площадь проекта составляет 90 м², из которых первый этаж занимает 52 м², а второй — 38 м². На первом этаже предусмотрена просторная комната отдыха (24 м²), душевая, сауна, техническое помещение и санузел. Также есть удобная терраса 12 м² — отличное место для летнего отдыха. Второй этаж включает три спальни, холл и дополнительный санузел, что делает проект полноценным решением как для выходных, так и для длительного проживания. Баня «Гараф» отлично подойдет для семей с детьми, которые ищут универсальное решение для отдыха и приема гостей. Благодаря просторной планировке и наличию спальных зон проект также востребован для сдачи в аренду или размещения туристов в глэмпингах.

Оплата Доставка
Описание
1. Фундамент
  • Геодезические исследования (топосъемка) участка
  • Геологические иследования участка
  • Подбор фундамента
  • Проект фундамента
  • Привязка строения на местности
  • Забивные ж/б сваи
  • Монолитный ж/б ростверк
  • Приемка инженером технического надзора
2. Стеновой комплект
  • Рабочий проект КД
  • Подкладочная доска из лиственницы
  • Брус клееный стеновой производства, сечение 175х185(h), немецкий профиль
  • Балки и столбы сухие, клееные, строганные
  • Комплектующие, фурнитура
  • Лестница межэтажная черновая однопролетная
  • Доставка стенового комплекта
  • Сборка стенового комплекта
  • Приемка инженером технического надзора
3. Кровля
  • Рабочий проект КД кровли
  • Покрытие кровли - металлочерепица с полимерным покрытием
  • Стропила сухие
  • Утепление 250 мм
  • Гидро-ветрозащитная мембарана
  • Пароизоляционная пленка
  • Комплектующие, фурнитура
  • Водосточная система
  • Трубчатая система снегозадержания
  • Техническая вентиляция
  • Подшивная доска для свесов кровли
  • Доставка
  • Сборка
  • Приемка инженером технического надзора
4. Окна и двери
  • ПВХ-профиль 70 мм и фурнитура
  • Стеклопакеты энергосберегающие многофункциональные
  • Входная дверь
  • Комплектующие
  • Внешние наличники
  • Монтаж
  • Приемка инженером технического надзора
5. Сопровождение строительства
  • Организация проживания рабочих (бытовка)
  • Подключение бытовки к электричеству
  • Организация биотуалета
  • Вывоз мусора
  • Заказать бесплатные изменения в проекте
    или планировке
    Бесплатные изменения
  • Получить фото и планировку этого проекта в WhatsApp или Telegram Фото и планировки
    Отправим
    в течение
    5 минут
  • Получить расчет
    стоимости
    в 3 вариантах комплектации
    Расчет стоимости

Остались вопросы?

Свяжитесь с нами или оставьте заявку — мы проконсультируем вас по всем вопросам.

Артем Ефремов

Артем Ефремов

Эксперт по строительству

Выберите удобный для вас способ связи:

Похожие проекты

Другие
Смотрите также похожие
  • По стоимости
    Проекты бань до 5 млн. ₽
    Иконка
  • По площади
    Проекты бань до 60 м2
    Иконка
  • По размеру
    Проекты бань 6x6
    Иконка
  • По материалу
    Каркасные бани под ключ
    Иконка
Гараф

Универсальная баня,
объединяющая эстетику, удобство и практичность.

Стоимость

от 3 627 000 руб.

Размеры

6х8

Площадь помещений

78 м²

Мы используем файлы cookie
для обеспечения наилучшего
взаимодействия с сайтом

наверх