

Баня в стиле Тоскана
Баня с возможностью ночлега,
благодаря удобной спальной зоне.
Размеры
6х8Площадь помещений
39 м²Пятно застройки
48 м²Этажность
2Технология
КаркаснаяСтиль
A-frameСтоимость
от 3 054 000 руб.Размеры
6х8Площадь помещений
39 м²Пятно застройки
48 м²Этажность
2Технология
КаркаснаяСтиль
A-frameПо вашему запросу мы бесплатно доработаем планировку, чтобы вы получили максимальное удовольствие от загородного отдыха
Предложим планировку, в которой каждый квадратный метр будет использован с максимальной эффективностью
Увеличим или уменьшим площадь здания. Изменим расположение окон и дверей. Добавим санузел, ещё одну спальню для гостей, террасу и так далее
Изменить проектТоскана: Баня в стиле A-frame – 6х8
Финская баня из каркаса 6×8 м “Тоскана” — идеальное решение для тех, кто ценит стиль, функциональность и уют в одном проекте.
Архитектура выполнена в популярном стиле A-frame с крутым скатом крыши, фасадом из дерева тёмного оттенка и панорамными окнами, обеспечивающими максимум естественного света и визуальный контакт с окружающим ландшафтом.
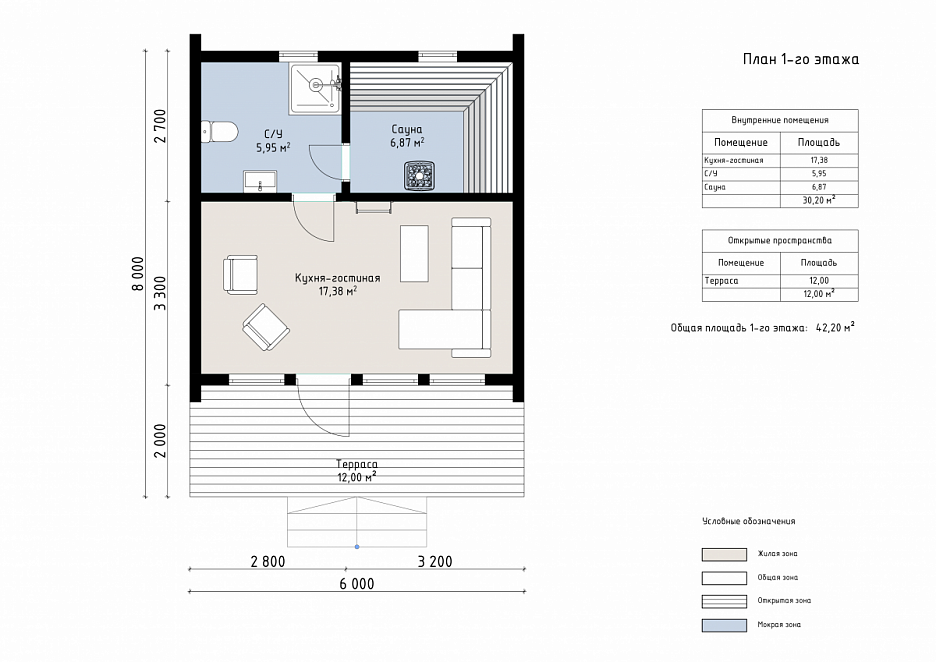
Площадь первого этажа составляет 42 м², на котором размещены кухня-гостиная (17 м²), санузел (6 м²) и просторная сауна (7 м²). На втором этаже расположена антресоль с жилой зоной площадью 9 м². Просторная терраса (12 м²) с выходом из гостиной отлично подойдёт для размещения шезлонгов или обеденной зоны.
Каркасное строительство и стильное оформление делают эту баню не только функциональной, но и привлекательной с эстетической точки зрения. Проект подойдёт как для частного использования, так и для сдачи в аренду в глэмпинг-комплексах.
- Бани под ключ
- Бани с террасой в стиле A-frame
- Дачные
- Двухэтажные бани в стиле A-frame
- Двухэтажные бани в стиле Шалаш
- Деревянные
- Каркасные бани
- Одноэтажные бани в стиле A-frame
- Одноэтажные бани в стиле Шалаш
- Типовые проекты бань
- Треугольная баня с треугольной крышей
- Треугольные бани в стиле Шалаш
- Треугольные двухэтажные бани
- Треугольные одноэтажные бани
- Треугольный дом с баней
| Описание | |
|---|---|
| 1. Фундамент |
|
| 2. Стеновой комплект |
|
| 3. Кровля |
|
| 4. Окна и двери |
|
| 5. Сопровождение строительства |
|
-
Заказать бесплатные изменения в проекте
или планировке
-
Получить фото и планировку этого проекта в WhatsApp или Telegram
Отправим
в течение
5 минут -
Получить расчет
стоимости в 3 вариантах комплектации
Остались вопросы?
Свяжитесь с нами или оставьте заявку — мы проконсультируем вас по всем вопросам.
Артем Ефремов
Эксперт по строительству
Похожие проекты
Другие- 6х8
- Размеры
- 39 м²
- Площадь помещений
Заполните форму и получите бесплатно: