
Гармиш
Компактные размеры,
подходящие как для дачи, так и для загородного дома.
Размеры
6х8Площадь помещений
77 м²Пятно застройки
48 м²Этажность
2Технология
БрусСтиль
скандинавияСтоимость
от 3 581 000 руб.Размеры
6х8Площадь помещений
77 м²Пятно застройки
48 м²Этажность
2Технология
БрусСтиль
скандинавияПо вашему запросу мы бесплатно доработаем планировку, чтобы вы получили максимальное удовольствие от загородного отдыха
Предложим планировку, в которой каждый квадратный метр будет использован с максимальной эффективностью
Увеличим или уменьшим площадь здания. Изменим расположение окон и дверей. Добавим санузел, ещё одну спальню для гостей, террасу и так далее
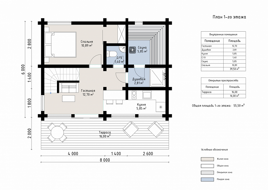
Изменить проектГармиш: Баня из бруса – 6х8
Проект "Гармиш" – это просторная двухэтажная баня с продуманной планировкой, объединяющая зону отдыха, парную и жилое пространство.
Проект сочетает современную архитектуру с традиционными банными функциями. Фасад украшен панорамным остеклением, а высокая двускатная крыша придаёт постройке выразительный и стильный силуэт. На первом этаже расположены гостиная (13 м²), кухня (6 м²), душевая, сауна, санузел и просторная терраса площадью 16 м². Второй этаж включает холл, три спальни площадью от 5 до 9 м² и дополнительный санузел. Общая площадь всех помещений составляет около 92 м². Баня «Гармиш» подойдёт для семьи с детьми или компании друзей, которые ценят комфорт, эстетику и возможность проводить выходные или отпуска в окружении природы. Планировка делает проект универсальным для круглогодичного проживания и отдыха.
| Описание | |
|---|---|
| 1. Фундамент |
|
| 2. Стеновой комплект |
|
| 3. Кровля |
|
| 4. Окна и двери |
|
| 5. Сопровождение строительства |
|
-
Заказать бесплатные изменения в проекте
или планировке
-
Получить фото и планировку этого проекта в WhatsApp или Telegram
Отправим
в течение
5 минут -
Получить расчет
стоимости в 3 вариантах комплектации
Остались вопросы?
Свяжитесь с нами или оставьте заявку — мы проконсультируем вас по всем вопросам.
Артем Ефремов
Эксперт по строительству
Похожие проекты
Другие- 6х8
- Размеры
- 77 м²
- Площадь помещений
Заполните форму и получите бесплатно: