
Баня Берлин 3
Компактная планировка,
где каждый метр используется с пользой.
Размеры
5х10Площадь помещений
29 м²Пятно застройки
50 м²Этажность
1Технология
КаркаснаяСтиль
Скандинавия с элементами шалеСтоимость
от 2 717 000 руб.Размеры
5х10Площадь помещений
29 м²Пятно застройки
50 м²Этажность
1Технология
КаркаснаяСтиль
Скандинавия с элементами шалеПо вашему запросу мы бесплатно доработаем планировку, чтобы вы получили максимальное удовольствие от загородного отдыха
Предложим планировку, в которой каждый квадратный метр будет использован с максимальной эффективностью
Увеличим или уменьшим площадь здания. Изменим расположение окон и дверей. Добавим санузел, ещё одну спальню для гостей, террасу и так далее
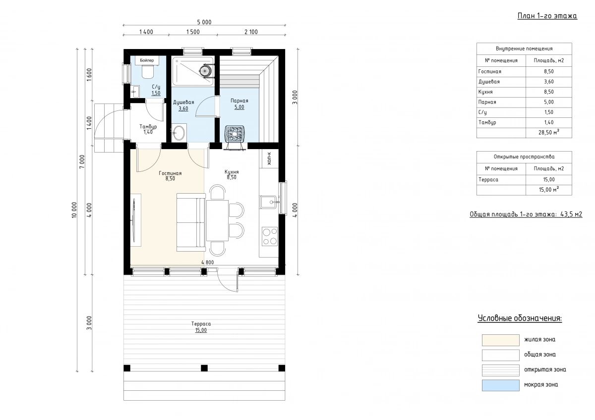
Изменить проектБерлин 3: Каркасная баня – 5х10
Компактная и стильная каркасная баня Берлин 3 — это идеальный выбор для тех, кто ценит уют и функциональность.
Выполненная в скандинавском стиле, баня отличается выразительным фасадом в тёмных тонах с натуральными деревянными вставками и высоким скатом крыши. Такой внешний вид отлично впишется как в лесной ландшафт, так и в современный пригородный участок. Внутреннее пространство организовано максимально рационально. В планировке предусмотрены: уютная гостиная (около 7 м²), совмещённая с кухней-столовой, парная (4 м²), душевая и санузел, а также входной тамбур. Благодаря правильной компоновке зон, баня остаётся комфортной при небольших габаритах. Открытая терраса перед фасадом создаёт идеальное место для отдыха на свежем воздухе и размещения летней мебели. Проект подходит как для частного использования на дачном или загородном участке, так и для коммерческих задач в сфере аренды бань. Идеален для 2–4 человек.
| Описание | |
|---|---|
| 1. Фундамент |
|
| 2. Стеновой комплект |
|
| 3. Кровля |
|
| 4. Окна и двери |
|
| 5. Сопровождение строительства |
|
-
Заказать бесплатные изменения в проекте
или планировке
-
Получить фото и планировку этого проекта в WhatsApp или Telegram
Отправим
в течение
5 минут -
Получить расчет
стоимости в 3 вариантах комплектации
Остались вопросы?
Свяжитесь с нами или оставьте заявку — мы проконсультируем вас по всем вопросам.
Артем Ефремов
Эксперт по строительству
Похожие проекты
Другие- 5х10
- Размеры
- 29 м²
- Площадь помещений
Заполните форму и получите бесплатно: