
Баня Берлин 3
Баня из клееного бруса с лаконичным фасадом
и светлым интерьером, идеально для загородного отдыха.
Размеры
5х10Площадь помещений
29 м²Пятно застройки
50 м²Этажность
1Технология
Клееный брусСтиль
ФахверкСтоимость
от 4 237 000 руб.Размеры
5х10Площадь помещений
29 м²Пятно застройки
50 м²Этажность
1Технология
Клееный брусСтиль
ФахверкПо вашему запросу мы бесплатно доработаем планировку, чтобы вы получили максимальное удовольствие от загородного отдыха
Предложим планировку, в которой каждый квадратный метр будет использован с максимальной эффективностью
Увеличим или уменьшим площадь здания. Изменим расположение окон и дверей. Добавим санузел, ещё одну спальню для гостей, террасу и так далее
Изменить проектБерлин 3: Баня из клееного бруса – 5х10
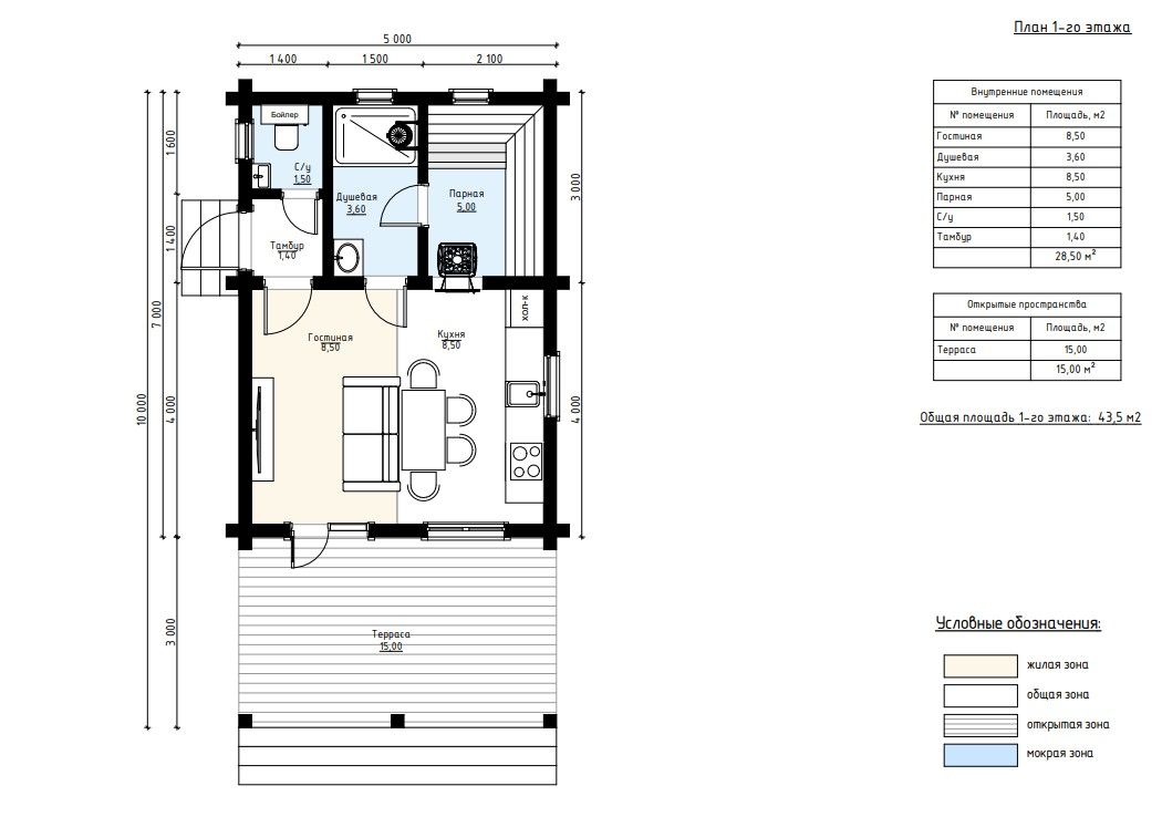
Баня из клееного бруса «Берлин 3» (5х10) общей площадью 50 м² выполнена в стиле шале
Натуральная древесина придаёт зданию тепло и гармонично вписывается в природное окружение. Простая двускатная крыша с большим выносом над террасой создаёт дополнительную зону отдыха на свежем воздухе. Общая площадь постройки — 50 м², включая просторную открытую террасу площадью 15 м². Внутреннее пространство рационально организовано: предусмотрены гостиная (8,5 м²), кухня (8,5 м²), парная (5 м²), душевая (3,6 м²), санузел (1,5 м²) и тамбур. Такое зонирование делает проект удобным для отдыха компанией 2–4 человек. Проект подойдёт тем, кто ищет функциональное решение для дачи или базы отдыха, где можно с комфортом попариться, провести вечер у костра и при желании остаться с ночёвкой. «Берлин 3» — идеальный выбор для компактного, но уютного банного отдыха.
| Описание | |
|---|---|
| 1. Фундамент |
|
| 2. Стеновой комплект |
|
| 3. Кровля |
|
| 4. Окна и двери |
|
| 5. Сопровождение строительства |
|
-
Заказать бесплатные изменения в проекте
или планировке
-
Получить фото и планировку этого проекта в WhatsApp или Telegram
Отправим
в течение
5 минут -
Получить расчет
стоимости в 3 вариантах комплектации
Остались вопросы?
Свяжитесь с нами или оставьте заявку — мы проконсультируем вас по всем вопросам.
Артем Ефремов
Эксперт по строительству
Похожие проекты
Другие- 5х10
- Размеры
- 29 м²
- Площадь помещений
Заполните форму и получите бесплатно: