
Баня Денвер
Компактные размеры позволяют разместить проект
даже на небольшом участке.
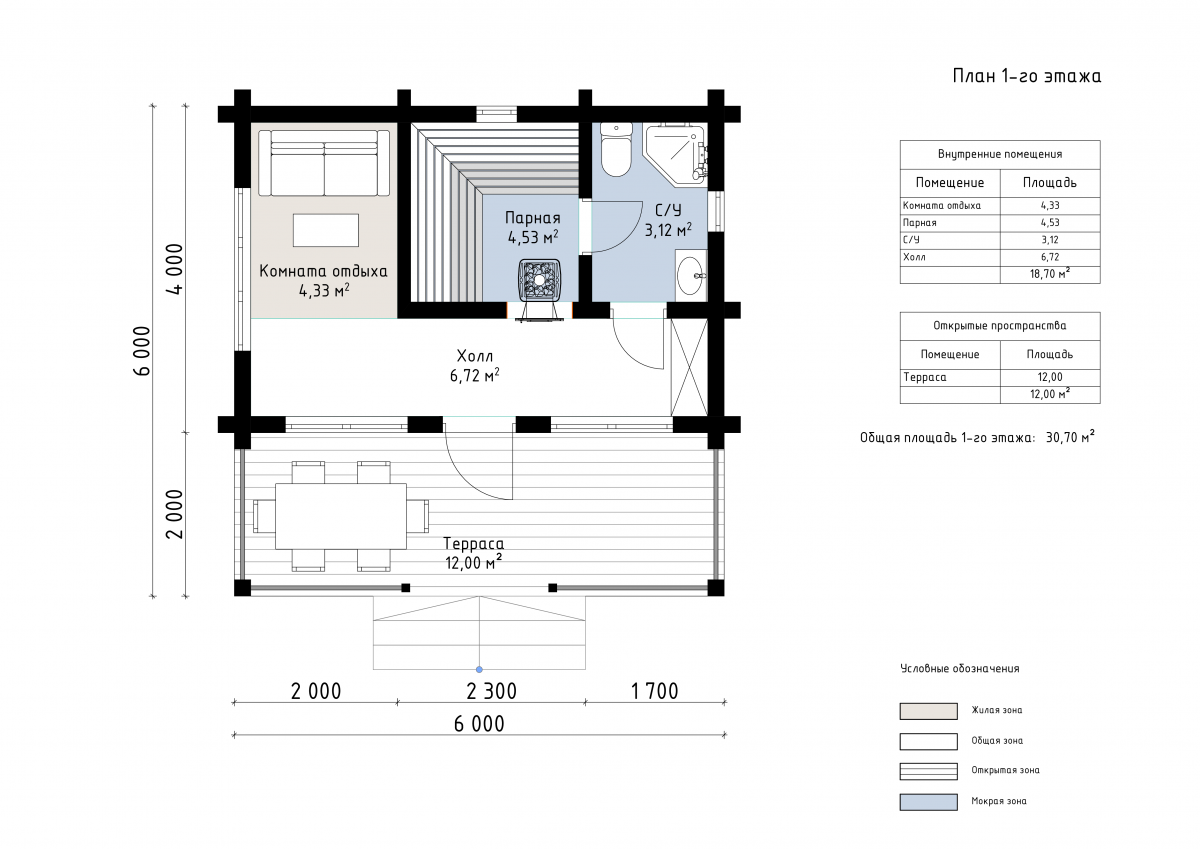
Размеры
6х6Площадь помещений
19 м²Пятно застройки
36 м²Этажность
1Технология
БревноСтиль
ДеревенскийСтоимость
от 1 240 000 руб.Размеры
6х6Площадь помещений
19 м²Пятно застройки
36 м²Этажность
1Технология
БревноСтиль
ДеревенскийПо вашему запросу мы бесплатно доработаем планировку, чтобы вы получили максимальное удовольствие от загородного отдыха
Предложим планировку, в которой каждый квадратный метр будет использован с максимальной эффективностью
Увеличим или уменьшим площадь здания. Изменим расположение окон и дверей. Добавим санузел, ещё одну спальню для гостей, террасу и так далее
Изменить проектДенвер: Баня из бревна – 6х6
Баня из бревна 6×6 м «Денвер» — это уютный проект с акцентом на традиционный стиль.
Архитектура строения отражает подлинную русскую эстетику с акцентом на естественные материалы: массив дерева, открытые террасы, минимальный бетон и металл.
Общая площадь первого этажа — около 31 м², из которых почти половина отведена под открытую террасу с видом на участок или лесной массив. Внутреннее пространство организовано логично и комфортно: здесь есть парная (4,5 м²), санузел (3,1 м²), комната отдыха (4,3 м²) и холл с гардеробной зоной (6,7 м²). Такой набор помещений позволяет с комфортом использовать баню как место полноценного уединённого отдыха.
Деревянные стены создают естественную теплоизоляцию и сохраняют стабильный микроклимат в любое время года. Утеплённая крыша и продуманная система вентиляции делают баню энергоэффективной и экономичной в эксплуатации. Терраса подходит для установки купели или зоны отдыха с креслами и чайным столиком.
Проект идеально подойдёт тем, кто ищет атмосферное банное пространство в классическом стиле — для дачи, загородного дома или лесного участка. «Денвер» рассчитан на 2–4 человек, отлично впишется в природное окружение и станет любимым местом отдыха на десятилетия.
| Описание | |
|---|---|
| 1. Фундамент |
|
| 2. Стеновой комплект |
|
| 3. Кровля |
|
| 4. Окна и двери |
|
| 5. Сопровождение строительства |
|
-
Заказать бесплатные изменения в проекте
или планировке
-
Получить фото и планировку этого проекта в WhatsApp или Telegram
Отправим
в течение
5 минут -
Получить расчет
стоимости в 3 вариантах комплектации
Остались вопросы?
Свяжитесь с нами или оставьте заявку — мы проконсультируем вас по всем вопросам.
Артем Ефремов
Эксперт по строительству
Похожие проекты
Другие- 6х6
- Размеры
- 19 м²
- Площадь помещений
Заполните форму и получите бесплатно: