

Больцано
Баня с рациональным использованием пространства
и стильным исполнением для семейного досуга
Размеры
6х6Площадь помещений
19 м²Пятно застройки
36 м²Этажность
1Технология
Проф. брусСтиль
СкандинавскийСтоимость
от 1 364 000 руб.Размеры
6х6Площадь помещений
19 м²Пятно застройки
36 м²Этажность
1Технология
Проф. брусСтиль
СкандинавскийПо вашему запросу мы бесплатно доработаем планировку, чтобы вы получили максимальное удовольствие от загородного отдыха
Предложим планировку, в которой каждый квадратный метр будет использован с максимальной эффективностью
Увеличим или уменьшим площадь здания. Изменим расположение окон и дверей. Добавим санузел, ещё одну спальню для гостей, террасу и так далее
Изменить проектБольцано: Финская баня из бруса – 6х6
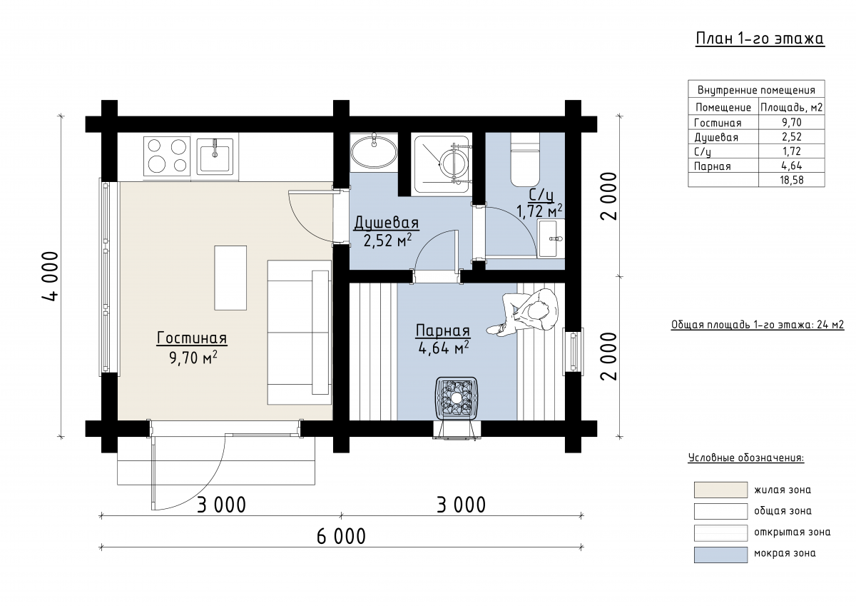
Баня «Больцано» общей площадью 24 м² выполнена из профилированного бруса, что гарантирует экологичность, прочность и теплоизоляцию.
Минималистичный и стильный проект идеально подходит для загородного участка.
Планировка включает гостиную площадью 10 м², душевую 3 м², санузел 2 м² и парную 5 м². Компактное размещение всех зон обеспечивает максимальный комфорт и функциональность.
Проект «Больцано» подойдет для небольших компаний или семейного отдыха, создавая уютное и современное пространство для релаксации.
| Описание | |
|---|---|
| 1. Фундамент |
|
| 2. Стеновой комплект |
|
| 3. Кровля |
|
| 4. Окна и двери |
|
| 5. Сопровождение строительства |
|
-
Заказать бесплатные изменения в проекте
или планировке
-
Получить фото и планировку этого проекта в WhatsApp или Telegram
Отправим
в течение
5 минут -
Получить расчет
стоимости в 3 вариантах комплектации
Остались вопросы?
Свяжитесь с нами или оставьте заявку — мы проконсультируем вас по всем вопросам.
Артем Ефремов
Эксперт по строительству
Похожие проекты
Другие- 6х6
- Размеры
- 19 м²
- Площадь помещений
Заполните форму и получите бесплатно: