Арлон

Современный стиль шале с открытым пространством
и комфортными зонами для релаксации.

Размеры

6х4

Площадь помещений

32 м²

Пятно застройки

24 м²

Этажность

2

Технология

Брус

Стиль

шале

Стоимость

от 1 719 000 руб.
от 1 719 000 руб.

Размеры

6х4

Площадь помещений

32 м²

Пятно застройки

24 м²

Этажность

2

Технология

Брус

Стиль

шале
Бесплатно
Бесплатно адаптируем планировку для вас

По вашему запросу мы бесплатно доработаем планировку, чтобы вы получили максимальное удовольствие от загородного отдыха

Предложим планировку, в которой каждый квадратный метр будет использован с максимальной эффективностью

Планировка

Увеличим или уменьшим площадь здания. Изменим расположение окон и дверей. Добавим санузел, ещё одну спальню для гостей, террасу и так далее

Изменить проект

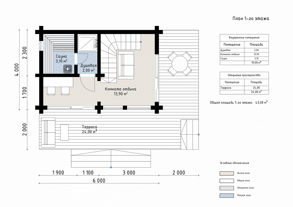
Арлон: Баня из бруса – 6х4

Проект "Арлон" выполнен в стиле шале, который сочетает уют, традиции и современные элементы.

Выполненная из профилированного бруса, она подчеркивает природную эстетику и надежность деревянных конструкций. Архитектура в стиле шале с большими окнами и просторной террасой создает атмосферу отдыха в гармонии с природой. Общая площадь здания составляет 43 м², из которых 13,9 м² занимает комната отдыха, а около 16 м² отведено под душевую, сауну и второй этаж с уютной спальней и холлом. Открытая терраса площадью 24 м² идеально подходит для загородных вечеров, отдыха с друзьями или уединенного времяпрепровождения. Планировка обеспечивает логичное разделение мокрой зоны и жилого пространства. Проект «Арлон» оптимален для тех, кто ищет баню с полноценным функционалом и возможностью размещения на ночевку. Подходит как для дачного участка, так и для небольшого участка в лесу — особенно ценится любителями уединения и комфортного отдыха на природе.

Оплата Доставка
Описание
1. Фундамент
  • Геодезические исследования (топосъемка) участка
  • Геологические иследования участка
  • Подбор фундамента
  • Проект фундамента
  • Привязка строения на местности
  • Забивные ж/б сваи
  • Монолитный ж/б ростверк
  • Приемка инженером технического надзора
2. Стеновой комплект
  • Рабочий проект КД
  • Подкладочная доска из лиственницы
  • Брус клееный стеновой производства, сечение 175х185(h), немецкий профиль
  • Балки и столбы сухие, клееные, строганные
  • Комплектующие, фурнитура
  • Лестница межэтажная черновая однопролетная
  • Доставка стенового комплекта
  • Сборка стенового комплекта
  • Приемка инженером технического надзора
3. Кровля
  • Рабочий проект КД кровли
  • Покрытие кровли - металлочерепица с полимерным покрытием
  • Стропила сухие
  • Утепление 250 мм
  • Гидро-ветрозащитная мембарана
  • Пароизоляционная пленка
  • Комплектующие, фурнитура
  • Водосточная система
  • Трубчатая система снегозадержания
  • Техническая вентиляция
  • Подшивная доска для свесов кровли
  • Доставка
  • Сборка
  • Приемка инженером технического надзора
4. Окна и двери
  • ПВХ-профиль 70 мм и фурнитура
  • Стеклопакеты энергосберегающие многофункциональные
  • Входная дверь
  • Комплектующие
  • Внешние наличники
  • Монтаж
  • Приемка инженером технического надзора
5. Сопровождение строительства
  • Организация проживания рабочих (бытовка)
  • Подключение бытовки к электричеству
  • Организация биотуалета
  • Вывоз мусора
  • Заказать бесплатные изменения в проекте
    или планировке
    Бесплатные изменения
  • Получить фото и планировку этого проекта в WhatsApp или Telegram Фото и планировки
    Отправим
    в течение
    5 минут
  • Получить расчет
    стоимости
    в 3 вариантах комплектации
    Расчет стоимости

Остались вопросы?

Свяжитесь с нами или оставьте заявку — мы проконсультируем вас по всем вопросам.

Артем Ефремов

Артем Ефремов

Эксперт по строительству

Выберите удобный для вас способ связи:

Похожие проекты

Другие
Смотрите также похожие
  • По стоимости
    Проекты бань до 5 млн. ₽
    Иконка
  • По площади
    Проекты бань до 60 м2
    Иконка
  • По размеру
    Проекты бань 6x6
    Иконка
  • По материалу
    Каркасные бани под ключ
    Иконка
Арлон

Современный стиль шале с открытым пространством
и комфортными зонами для релаксации.

Стоимость

от 1 719 000 руб.

Размеры

6х4

Площадь помещений

32 м²

Мы используем файлы cookie
для обеспечения наилучшего
взаимодействия с сайтом

наверх