
Калгари
Баня в скандинавском стиле с просторной зоной отдыха
и террасой для встреч с семьей и друзьями.
Размеры
13х9Площадь помещений
46 м²Пятно застройки
117 м²Этажность
1Технология
Клееный брусСтиль
скандинавияСтоимость
от 5 920 000 руб.Размеры
13х9Площадь помещений
46 м²Пятно застройки
117 м²Этажность
1Технология
Клееный брусСтиль
скандинавияПо вашему запросу мы бесплатно доработаем планировку, чтобы вы получили максимальное удовольствие от загородного отдыха
Предложим планировку, в которой каждый квадратный метр будет использован с максимальной эффективностью
Увеличим или уменьшим площадь здания. Изменим расположение окон и дверей. Добавим санузел, ещё одну спальню для гостей, террасу и так далее
Изменить проектКалгари: Финская баня из клееного бруса – 13х9
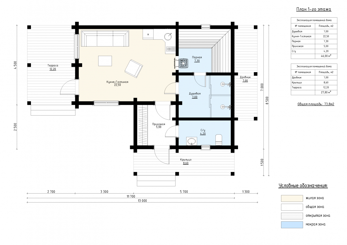
Финская баня из клееного бруса размером 14x15 м «Калгари» общей площадью 74 м² выполнена из клееного бруса, что обеспечивает прочность, долговечность и комфортное использование круглый год.
Финская баня из клееного бруса размером 14×15 м «Калгари» общей площадью 74 м² выполнена из клееного бруса, что обеспечивает прочность, долговечность и комфортное использование круглый год. Архитектурный стиль сочетает скандинавский минимализм и элементы современной классики, создавая уютную атмосферу. Внутренние помещения занимают 46 м² и включают: Кухню-гостиную площадью 22,5 м² — для семейных обедов и встреч с друзьями, Парную 7, 5 м² — для полного расслабления. Душевую 7 м² и санузел 4 м² — для удобства и гигиены. Прихожую 5 м² — для комфортного входа в дом. Дополнительно проект включает: Террасу 12 м² — идеальное место для отдыха на свежем воздухе. Проект «Калгари» создан для тех, кто ценит гармонию с природой, функциональность и стиль. Он станет прекрасным выбором для загородного отдыха, предоставляя уютное пространство для релаксации всей семьей или в кругу друзей.
| Описание | |
|---|---|
| 1. Фундамент |
|
| 2. Стеновой комплект |
|
| 3. Кровля |
|
| 4. Окна и двери |
|
| 5. Сопровождение строительства |
|
-
Заказать бесплатные изменения в проекте
или планировке
-
Получить фото и планировку этого проекта в WhatsApp или Telegram
Отправим
в течение
5 минут -
Получить расчет
стоимости в 3 вариантах комплектации
Остались вопросы?
Свяжитесь с нами или оставьте заявку — мы проконсультируем вас по всем вопросам.
Артем Ефремов
Эксперт по строительству
Похожие проекты
Другие- 13х9
- Размеры
- 46 м²
- Площадь помещений
Заполните форму и получите бесплатно: