

Стокгольм
Баня для загородного отдыха,
гармонично вписывающаяся в природный ландшафт.
Размеры
8х6Площадь помещений
30 м²Пятно застройки
48 м²Этажность
1Технология
КаркаснаяСтиль
СкандинавияСтоимость
По запросуРазмеры
8х6Площадь помещений
30 м²Пятно застройки
48 м²Этажность
1Технология
КаркаснаяСтиль
СкандинавияПо вашему запросу мы бесплатно доработаем планировку, чтобы вы получили максимальное удовольствие от загородного отдыха
Предложим планировку, в которой каждый квадратный метр будет использован с максимальной эффективностью
Увеличим или уменьшим площадь здания. Изменим расположение окон и дверей. Добавим санузел, ещё одну спальню для гостей, террасу и так далее
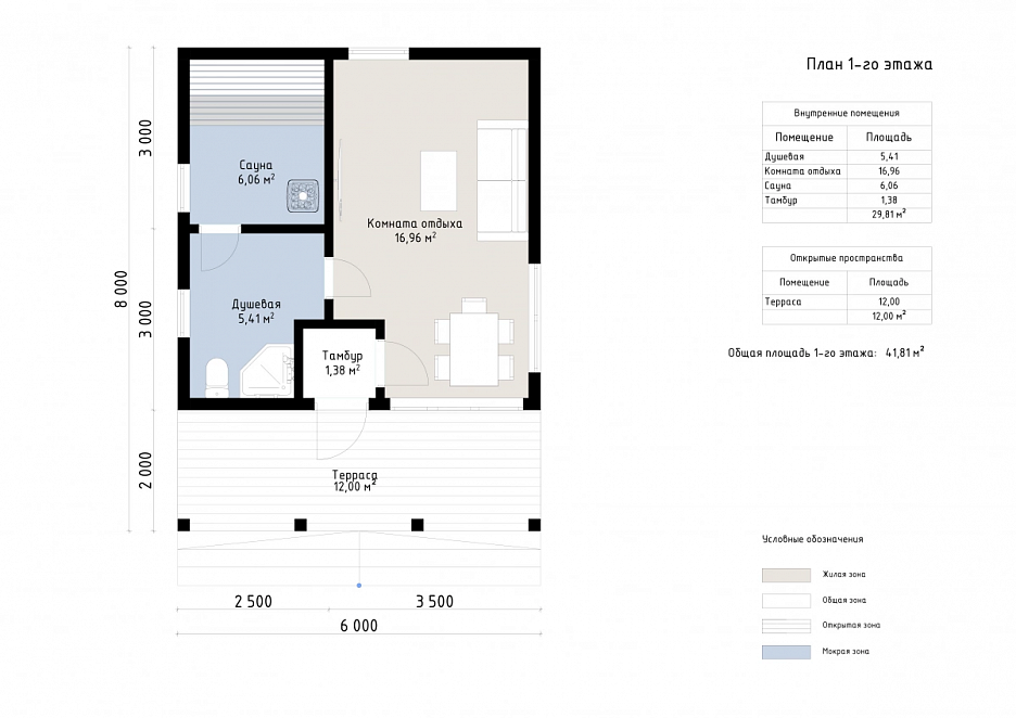
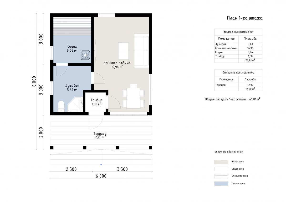
Изменить проектСтокгольм: Скандинавская баня – 8х6
Баня "Стокгольм" — стильное и компактное решение, выполненное в скандинавском стиле.
Фасад из натурального дерева с контрастными элементами придает постройке современный и уютный вид. Панорамные окна обеспечивают отличное естественное освещение и визуально расширяют пространство. Внутреннее пространство включает просторную комнату отдыха площадью 17 м², в которой можно разместить обеденный стол, мягкую зону и даже небольшой камин. Парная размером 6 м² позволяет комфортно насладиться паром. Душевая 5 м² и тамбур 1 м² обеспечивают удобство использования. Открытая терраса 12 м² станет отличным местом для отдыха на свежем воздухе. «Стокгольм» идеально подойдет для любителей минимализма и практичности. Баня легко впишется в любой ландшафт и станет отличным дополнением загородного участка.
- Бани под ключ
- Бани с большой верандой
- Бани с большой террасой под ключ
- Бани с верандой и барбекю под ключ
- Бани с верандой и мангалом под ключ
- Бани с верандой под одной крышей
- Бани с закрытой верандой
- Бани с открытой верандой
- Бани с террасой под одной крышей
- Готовые деревянные бани
- Дачные
- Деревянные двухэтажные бани
- Деревянные одноэтажные бани
- Каркасные бани
- Типовые проекты бань
| Описание | |
|---|---|
| 1. Фундамент |
|
| 2. Стеновой комплект |
|
| 3. Кровля |
|
| 4. Окна и двери |
|
| 5. Сопровождение строительства |
|
-
Заказать бесплатные изменения в проекте
или планировке
-
Получить фото и планировку этого проекта в WhatsApp или Telegram
Отправим
в течение
5 минут -
Получить расчет
стоимости в 3 вариантах комплектации
Остались вопросы?
Свяжитесь с нами или оставьте заявку — мы проконсультируем вас по всем вопросам.
Артем Ефремов
Эксперт по строительству
Похожие проекты
Другие- 8х6
- Размеры
- 30 м²
- Площадь помещений
Заполните форму и получите бесплатно: