

Больхеден
Барнхаус-баня с панорамными окнами,
наполняющими пространство светом и воздухом.
Размеры
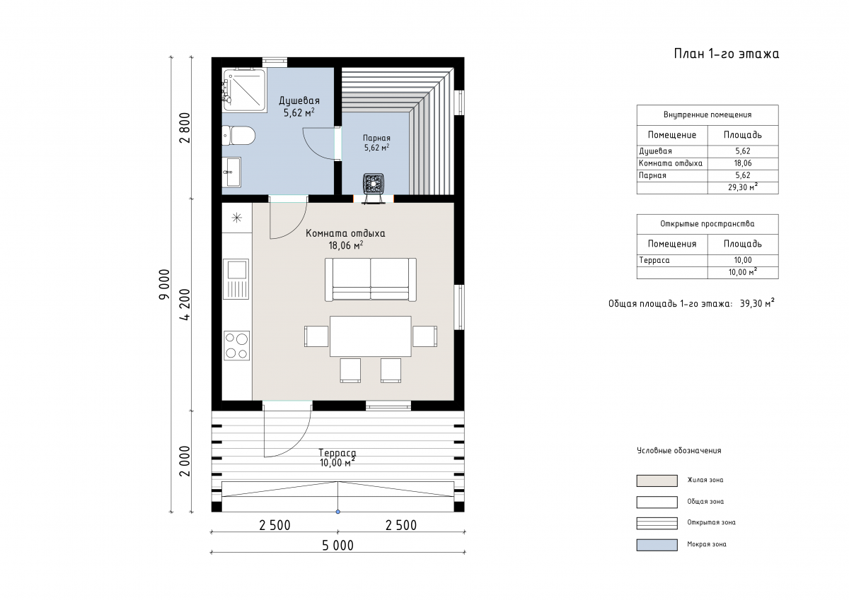
9х5Площадь помещений
29 м²Пятно застройки
45 м²Этажность
1Технология
КаркаснаяСтиль
БарнхаусСтоимость
от 2 462 000 руб.Размеры
9х5Площадь помещений
29 м²Пятно застройки
45 м²Этажность
1Технология
КаркаснаяСтиль
БарнхаусПо вашему запросу мы бесплатно доработаем планировку, чтобы вы получили максимальное удовольствие от загородного отдыха
Предложим планировку, в которой каждый квадратный метр будет использован с максимальной эффективностью
Увеличим или уменьшим площадь здания. Изменим расположение окон и дверей. Добавим санузел, ещё одну спальню для гостей, террасу и так далее
Изменить проектБольхеден: Баня Барнхаус – 9х5
Барнхаус «Больхеден» — стильная каркасная баня с панорамным остеклением и просторной террасой 10 м².
Общая площадь строения составляет 39 м². Внутри организовано комфортное пространство для отдыха: большая комната 18 м² объединяет зону кухни и гостиной, создавая уютную атмосферу. Просторная парная 6 м² рассчитана на несколько человек, а душевое помещение аналогичной площади позволяет комфортно завершить банные процедуры.
Продуманный архитектурный стиль с выраженной геометрией и контрастным оформлением фасадов подчеркивает современность проекта. Благодаря сочетанию натуральных материалов и продуманного освещения баня гармонично вписывается в любой загородный ландшафт.
| Описание | |
|---|---|
| 1. Фундамент |
|
| 2. Стеновой комплект |
|
| 3. Кровля |
|
| 4. Окна и двери |
|
| 5. Сопровождение строительства |
|
-
Заказать бесплатные изменения в проекте
или планировке
-
Получить фото и планировку этого проекта в WhatsApp или Telegram
Отправим
в течение
5 минут -
Получить расчет
стоимости в 3 вариантах комплектации
Остались вопросы?
Свяжитесь с нами или оставьте заявку — мы проконсультируем вас по всем вопросам.
Артем Ефремов
Эксперт по строительству
Похожие проекты
Другие- 9х5
- Размеры
- 29 м²
- Площадь помещений
Заполните форму и получите бесплатно: