


Валенсия
Оптимальное сочетание комфорта и функциональности,
создающее идеальное пространство для отдыха
Размеры
5х5Площадь помещений
11 м²Пятно застройки
25 м²Этажность
1Технология
КаркаснаяСтиль
Хай-текСтоимость
от 1 597 000 руб.Размеры
5х5Площадь помещений
11 м²Пятно застройки
25 м²Этажность
1Технология
КаркаснаяСтиль
Хай-текПо вашему запросу мы бесплатно доработаем планировку, чтобы вы получили максимальное удовольствие от загородного отдыха
Предложим планировку, в которой каждый квадратный метр будет использован с максимальной эффективностью
Увеличим или уменьшим площадь здания. Изменим расположение окон и дверей. Добавим санузел, ещё одну спальню для гостей, террасу и так далее
Изменить проектВаленсия: Хай-тек баня – 5х5
Баня «Валенсия» — стильное и компактное решение для комфортного отдыха в минималистичном дизайне.
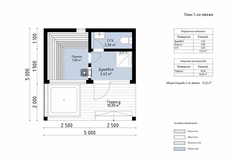
Компактные размеры позволяют разместить её даже на небольшом участке, сохраняя удобство и функциональность. Панорамные окна обеспечивают естественное освещение и создают ощущение единения с природой. Внутреннее пространство организовано максимально эффективно: парная площадью 6 м² с современной печью, душевая 3 м² и санузел 2 м² обеспечивают комфортные условия для банных процедур. Терраса 10 м² станет идеальным местом для отдыха на свежем воздухе, а купель дополнит атмосферу расслабления. Лаконичный фасад выполнен в современном стиле Хай-тек, сочетая тёмные акценты с натуральными материалами. Баня «Валенсия» — идеальный вариант для тех, кто ценит функциональность, комфорт и стиль.
- Бани 5х5 под ключ
- Бани под ключ
- Бани с барбекю и мангалом
- Бани с беседкой и бассейном
- Бани с бильярдом и бассейном
- Бани с джакузи и бильярдом
- Бани с комнатой отдыха в стиле Лофт
- Бани с мангалом и барбекю
- Бани с мини-бассейном
- Бани с панорамными окнами в стиле Хай-тек
- Бани с плоской крышей в стиле Лофт
- Бани с теплым бассейном
- Бани хай тек с панорамными окнами
- Бани: модульные 5x5
- Бани: модульные джакузи
- Бани: модульные дизайнерские
- Бани: модульные до 15 кв м
- Бани: модульные квадратные
- Бани: модульные летняя кухня
- Бани: модульные мини-бани
- Бани: модульные минимализм
- Бани: модульные модерн
- Бани: модульные на 3 человек
- Бани: модульные на 4 человек
- Бани: модульные на 5 человек
- Бани: модульные одноэтажные
- Бани: модульные парилка
- Бани: модульные плоская
- Бани: модульные помывочная
- Бани: модульные сауна
- Бани: модульные хай-тек
- Готовые бани в стиле Модерн
- Готовые бани с отделкой
- Готовые бани с панорамными окнами
- Готовые финские бани
- Дачные
- Двухмодульные бани
- Деревянные
- Дизайнерские бани в стиле Хай-тек
- дом-баня
- Жилые бани в стиле Хай-тек
- Каркасные бани
- Классические одноэтажные бани
- Красивые бани с панорамными окнами
- Мини бани в стиле Лофт
- Модульные бани
- Модульные бани с беседкой
- Модульные бани с верандой
- Модульные бани с душем
- Модульные бани с купелью
- Модульные бани с мангальной зоной
- Модульные бани с террасой
- Модульные бани с туалетом-санузлом
- Модульные бани с чаном
- Модульные каркасные
- Недорогие бани с барбекю
- Недорогие бани с душем
- Недорогие бани с мангалом
- Недорогие бани с печкой
- Одноэтажные бани в стиле Минимализм
- Одноэтажные бани в стиле Модерн
- Одноэтажные бани в стиле Хай-тек
- Одноэтажные бани с бильярдом
- Одноэтажные бани с зоной для мангала
- Оригинальные одноэтажные бани
- Панорамные модульные бани
- Размеры модульных бань
- Скандинавские бани с комнатой отдыха
- Скандинавские одноэтажные бани
- Современные бани в стиле Минимализм
- Современные бани в стиле Модерн
- Современные бани с панорамными окнами
- Типовые проекты бань
- Финские бани на дачу
- Финские бани с панорамными окнами
- Финские бани с печкой
| Описание | |
|---|---|
| 1. Фундамент |
|
| 2. Стеновой комплект |
|
| 3. Кровля |
|
| 4. Окна и двери |
|
| 5. Сопровождение строительства |
|
-
Заказать бесплатные изменения в проекте
или планировке
-
Получить фото и планировку этого проекта в WhatsApp или Telegram
Отправим
в течение
5 минут -
Получить расчет
стоимости в 3 вариантах комплектации
Остались вопросы?
Свяжитесь с нами или оставьте заявку — мы проконсультируем вас по всем вопросам.
Артем Ефремов
Эксперт по строительству
Похожие проекты
Другие- 5х5
- Размеры
- 11 м²
- Площадь помещений
Заполните форму и получите бесплатно: