




Даллас 25 (5х5)
Панорамное остекление
и натуральные материалы для уюта.
Размеры
5х5Площадь помещений
17 м²Пятно застройки
м²Этажность
1Технология
МодульнаяСтиль
БарнхаусСтоимость
от 1 743 000 руб.Размеры
5х5Площадь помещений
17 м²Пятно застройки
м²Этажность
1Технология
МодульнаяСтиль
БарнхаусПо вашему запросу мы бесплатно доработаем планировку, чтобы вы получили максимальное удовольствие от загородного отдыха
Предложим планировку, в которой каждый квадратный метр будет использован с максимальной эффективностью
Увеличим или уменьшим площадь здания. Изменим расположение окон и дверей. Добавим санузел, ещё одну спальню для гостей, террасу и так далее
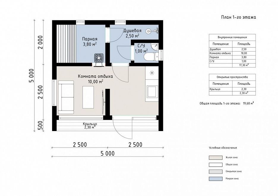
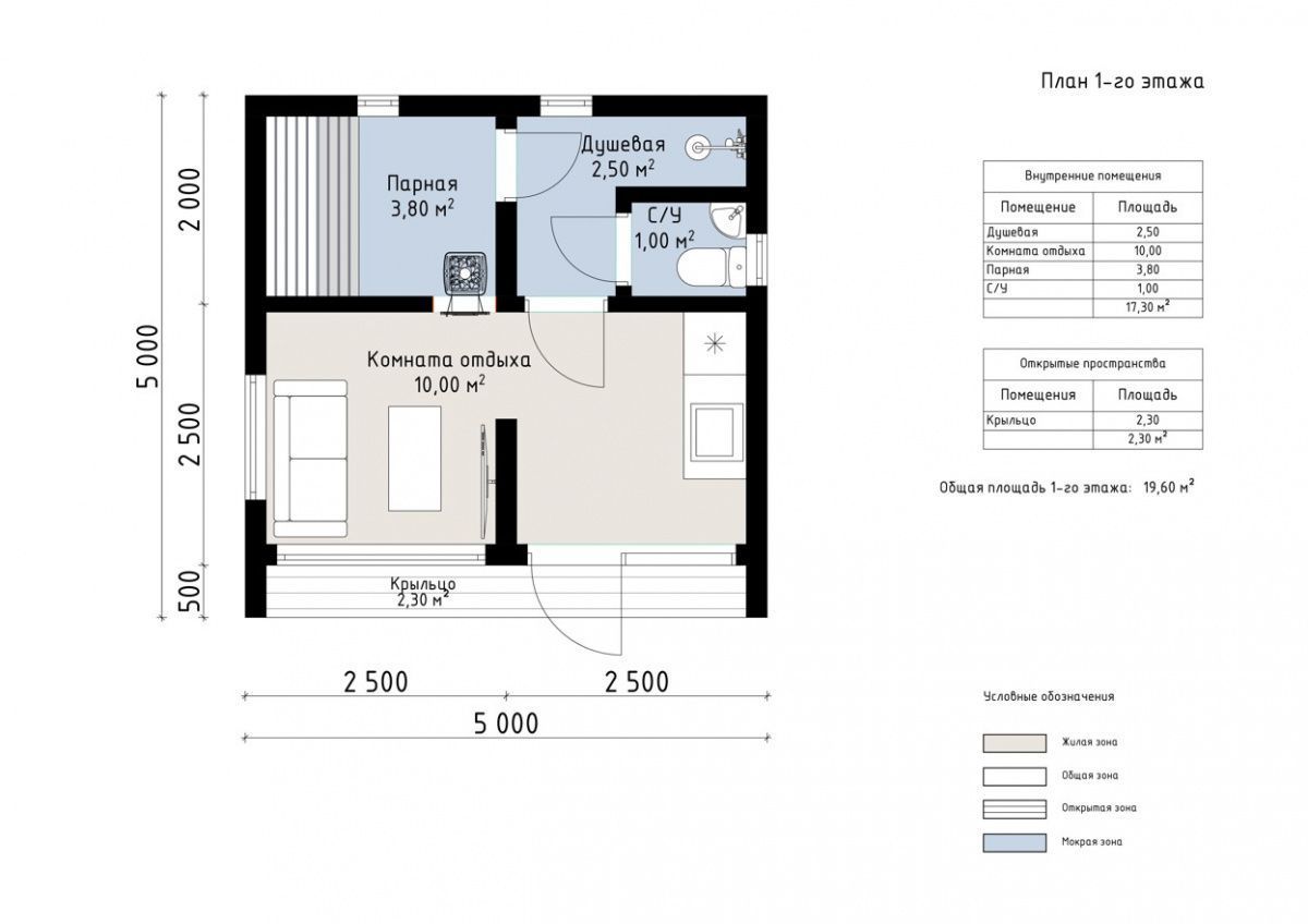
Изменить проектДаллас 25 (5х5): Модульная баня – 5х5
Модульная баня 5×5 «Даллас» общей площадью бани 20 м² - идеальное решение для небольших участков
Лаконичный современный дизайн с панорамным остеклением делает постройку легкой и гармоничной в любом окружении.
Внутреннее пространство включает комнату отдыха (10 м²), где можно расслабиться после банных процедур. Удобная парная (4 м²) с продуманной компоновкой обеспечивает комфортный отдых, а рядом расположенные душевая (2,5 м²) и санузел (1 м²) повышают функциональность бани.
Перед входом расположено крытое крыльцо (2,5 м²), создающее уютное место для отдыха на свежем воздухе.
«Даллас» – это компактность, стиль и продуманная эргономика в одном решении.
- Бани 5х5 под ключ
- Бани под ключ
- Бани: модульные 15-20 кв м
- Бани: модульные 5x5
- Бани: модульные двускатная
- Бани: модульные квадратные
- Бани: модульные компактные
- Бани: модульные кухня
- Бани: модульные на 1 человека
- Бани: модульные на 2 человек
- Бани: модульные на 3 человек
- Бани: модульные одноэтажные
- Бани: модульные парилка
- Бани: модульные помывочная
- Бани: модульные сауна
- Готовые бани
- Готовые модульные бани
- Дачные
- Деревянные
- Каркасные бани
- Модульные бани
- Модульные бани с бассейном
- Модульные бани с душем
- Модульные бани с комнатой
- Модульные бани с купелью
- Модульные бани с туалетом-санузлом
- Модульные каркасные
- Панорамные модульные бани
- Размеры модульных бань
- Скандинавские модульные бани
- Типовые проекты бань
| Описание | |
|---|---|
| 1. Фундамент |
|
| 2. Стеновой комплект |
|
| 3. Кровля |
|
| 4. Окна и двери |
|
| 5. Сопровождение строительства |
|
-
Заказать бесплатные изменения в проекте
или планировке
-
Получить фото и планировку этого проекта в WhatsApp или Telegram
Отправим
в течение
5 минут -
Получить расчет
стоимости в 3 вариантах комплектации
Остались вопросы?
Свяжитесь с нами или оставьте заявку — мы проконсультируем вас по всем вопросам.
Артем Ефремов
Эксперт по строительству
Похожие проекты
Другие- 5х5
- Размеры
- 17 м²
- Площадь помещений
Заполните форму и получите бесплатно: