

Виттен
Современная каркасная баня в стиле хай-тек,
с просторной террасой для комфортного отдыха.
Размеры
7х9Площадь помещений
38 м²Пятно застройки
63 м²Этажность
1Технология
КаркаснаяСтиль
Хай-текСтоимость
от 2 895 000 руб.Размеры
7х9Площадь помещений
38 м²Пятно застройки
63 м²Этажность
1Технология
КаркаснаяСтиль
Хай-текПо вашему запросу мы бесплатно доработаем планировку, чтобы вы получили максимальное удовольствие от загородного отдыха
Предложим планировку, в которой каждый квадратный метр будет использован с максимальной эффективностью
Увеличим или уменьшим площадь здания. Изменим расположение окон и дверей. Добавим санузел, ещё одну спальню для гостей, террасу и так далее
Изменить проектВиттен: Хай-тек баня – 7х9
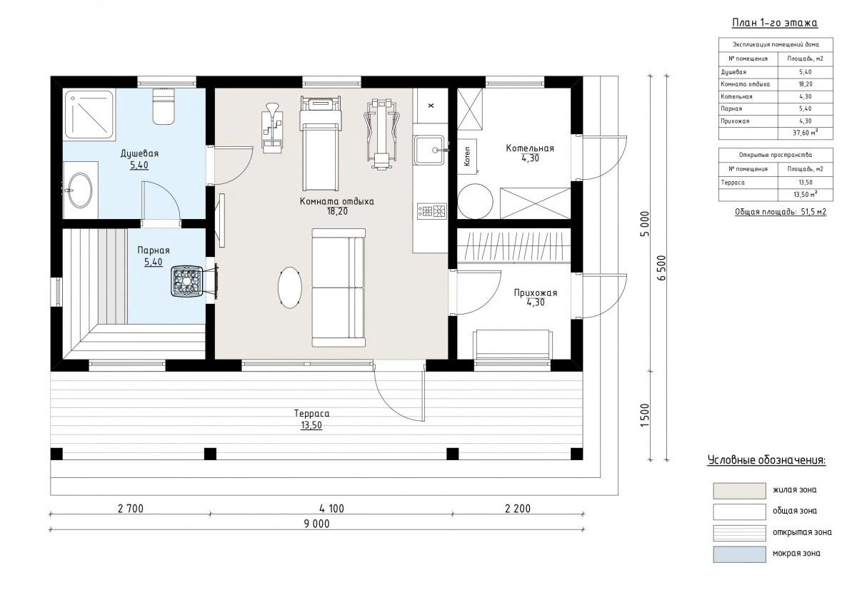
Современная каркасная баня «Виттен» выполнена в стиле хай-тек и сочетает функциональность, минимализм и комфорт.
Просторная терраса площадью 14 м² станет отличным местом для отдыха на свежем воздухе, а панорамные окна наполняют внутренние помещения естественным светом.
Внутри расположена уютная комната отдыха (18 м²), которая совмещает зону релаксации и фитнес-пространство. Парная площадью 5 м² рассчитана на комфортное пребывание нескольких человек одновременно, а душевое помещение (5 м²) позволяет освежиться после банных процедур. Дополнительно предусмотрены котельная (4 м²) и прихожая (4 м²), что делает баню еще более удобной в эксплуатации.
Общая площадь бани составляет 52 м², из которых 38 м² занимает отапливаемое пространство. Продуманный планировочный подход обеспечивает максимум комфорта в компактном формате, а строгий и лаконичный дизайн гармонично вписывается в современную загородную архитектуру.
- Бани под ключ
- Бани с барбекю и мангалом
- Бани с беседкой и бассейном
- Бани с комнатой отдыха в стиле Лофт
- Бани с мангалом и барбекю
- Бани с мини-бассейном
- Бани с панорамными окнами в стиле Хай-тек
- Бани с плоской крышей в стиле Лофт
- Бани с теплым бассейном
- Бани хай тек с панорамными окнами
- Бани: модульные 7x9
- Бани: модульные бани инд. проект
- Бани: модульные джакузи
- Бани: модульные дизайнерские
- Бани: модульные до 50 кв м
- Бани: модульные комната и терраса
- Бани: модульные котельная
- Бани: модульные кухня
- Бани: модульные летняя кухня
- Бани: модульные маленькие
- Бани: модульные минимализм
- Бани: модульные модерн
- Бани: модульные на 3 человек
- Бани: модульные на 4 человек
- Бани: модульные на 5 человек
- Бани: модульные одноэтажные
- Бани: модульные парилка
- Бани: модульные плоская
- Бани: модульные помывочная
- Бани: модульные прихожая
- Бани: модульные прямоугольные
- Бани: модульные сауна
- Бани: модульные тамбур
- Бани: модульные топочная
- Бани: модульные хай-тек
- Готовые бани в стиле Модерн
- Готовые бани с отделкой
- Готовые бани с панорамными окнами
- Готовые модульные бани
- Готовые финские бани
- Дачные
- Деревянные
- Дизайнерские бани в стиле Хай-тек
- дом-баня
- Жилые бани в стиле Хай-тек
- Каркасные бани
- Классические одноэтажные бани
- Красивые бани с панорамными окнами
- Мини бани в стиле Лофт
- Модульные бани
- Модульные бани премиум
- Модульные бани с беседкой
- Модульные бани с верандой
- Модульные бани с душем
- Модульные бани с комнатой
- Модульные бани с купелью
- Модульные бани с мангальной зоной
- Модульные бани с террасой
- Модульные бани с туалетом-санузлом
- Модульные каркасные
- Недорогие бани с барбекю
- Недорогие бани с душем
- Недорогие бани с мангалом
- Недорогие бани с печкой
- Одноэтажные бани в стиле Минимализм
- Одноэтажные бани в стиле Модерн
- Одноэтажные бани в стиле Хай-тек
- Одноэтажные бани с бильярдом
- Одноэтажные бани с зоной для мангала
- Оригинальные одноэтажные бани
- Панорамные модульные бани
- Размеры модульных бань
- Скандинавские бани с комнатой отдыха
- Скандинавские одноэтажные бани
- Современные бани в стиле Минимализм
- Современные бани в стиле Модерн
- Современные бани с панорамными окнами
- Типовые проекты бань
- Финские бани на дачу
- Финские бани с панорамными окнами
- Финские бани с печкой
| Описание | |
|---|---|
| 1. Фундамент |
|
| 2. Стеновой комплект |
|
| 3. Кровля |
|
| 4. Окна и двери |
|
| 5. Сопровождение строительства |
|
-
Заказать бесплатные изменения в проекте
или планировке
-
Получить фото и планировку этого проекта в WhatsApp или Telegram
Отправим
в течение
5 минут -
Получить расчет
стоимости в 3 вариантах комплектации
Остались вопросы?
Свяжитесь с нами или оставьте заявку — мы проконсультируем вас по всем вопросам.
Артем Ефремов
Эксперт по строительству
Похожие проекты
Другие- 7х9
- Размеры
- 38 м²
- Площадь помещений
Заполните форму и получите бесплатно: